Portafolio de anteproyectos

1. Vivienda S-187

Palabra: Crecimiento — Ubicación: Nayón, Quito — Año de diseño: 2023 — Área del proyecto: 100,61 m2

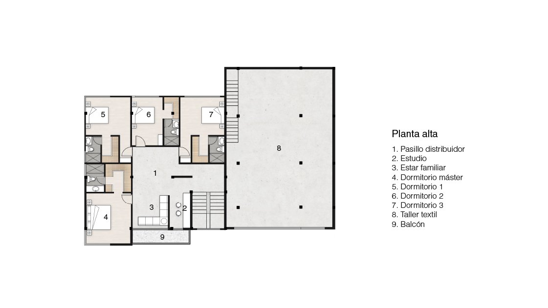
2. Vivienda y taller O1

Palabra: Interacción — Ubicación: Valle de Los Chillos — Año de diseño: 2021 — Área del proyecto: 443,56 m2

3. Conjunto residencial “Prados de Mejía”

Palabra: Comunidad — Ubicación: Machachi, Mejia — Año de diseño: 2022 — Área vivienda: 131,19 m2 — Área del proyecto: 2728 m2

4. Departamentos en Puembo

Palabra: Compartir — Ubicación: Puembo, Quito — Año de diseño: 2021 — Área del proyecto: 115,05 m2

5. Remodelación restaurante “El Rosal”

Palabra: Modernizar – Ubicación: Cayambe, Pichincha – Año de diseño: 2020 – Área del proyecto: 288,65 m2

6. Edificio Mixto LS

Palabra: Aprovechar – Ubicación: Conocoto, Quito – Año de diseño: 2022 – Área del proyecto: 457,68 m2

7. Remodelación vivienda VC

Palabra: Adaptación – Ubicación: La Vicentina, Quito – Año de diseño: 2021 – Área del proyecto: 132,74 m2

8. Otros proyectos

Año de diseño: 2020-2023
Portafolio de anteproyectos